Eladó lakás Budapest II. ker 320 000 000 Ft

Leírás

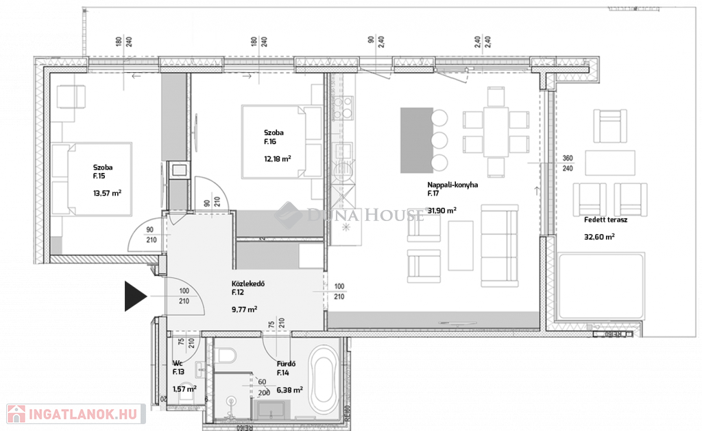
Pasarét zöldövezeti részén, a II. kerület egyik legkedveltebb pontján épült meg 2025-ben ez az exkluzív, ötlakásos, liftes társasház, amely modern építészetével, prémium anyaghasználatával és innovatív technológiáival a kortárs luxus új szintjét képviseli. A 2234 m²-es telken álló háromszintes épület a természetközeli életérzést ötvözi a városi kényelemmel, nagy hangsúlyt fektetve a tágas, világos életterekre és a privát szférára. Minden lakás teraszos, a felszereltség része a jacuzzi és a pergola, a földszinti otthonok kertkapcsolatosak, a felsőbb szintekről zöld lombkoronára vagy panorámára nyílik kilátás.

A lakások energiatakarékos gépészettel, geotermikus hűtés-fűtéssel, hővisszanyerős szellőzéssel, háromrétegű üvegezésű nyílászárókkal és LOXONE okosotthon-rendszerrel készültek. A belső terek kialakítása prémium minőségű, a konyha pedig a leendő tulajdonos igényei alapján alakítható. A lakások azonnal költözhetők, mindegyikhez két garázshely és egy tároló tartozik.

Lakás részletei

Ár: 320 000 000 Ft
Méret: 95 négyzetméter
Azonosító: 11580529
Irodai azonosító: PR018560/LK/26075-5088033
Cím: Budapest 2. ker.i 95 nm-es lakás eladó
Emelet: Földszint
Építőanyag: Tégla
Fűtés jellege: Hőszivattyú
Ingatlan állapota: Épülő
Építési év: Új építésű
Egész szobák: 3

Egyéb jellemzők

  • Erkély
  • Garázs
  • Lift

Térkép